Nuove ville in classe A4 a Castelletto Sopra Ticino

In vendita
Villa
Castelletto sopra Ticino
485.000 €
Descrizione
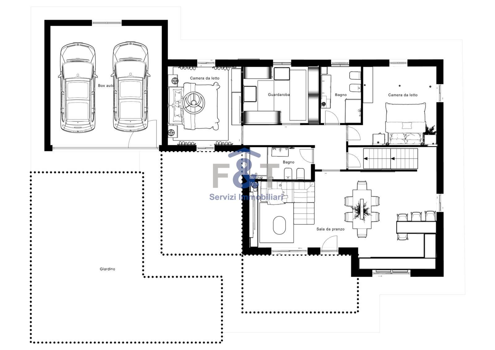
Le ville di nuova costruzione a Castelletto Sopra Ticino rappresentano un’opportunità ideale per chi desidera una casa moderna, spaziosa e altamente efficiente. Le tre ville previste, progettate in classe energetica A4, uniscono design contemporaneo, comfort e consumi ridotti. Completamente indipendenti, sorgono in una zona tranquilla ma ben collegata, perfetta sia per le famiglie sia per chi vuole vivere lontano dal caos cittadino senza rinunciare alla comodità quotidiana. La prima unità è una villa costruita su un lotto di 560 mq. L’abitazione si sviluppa su 194 mq distribuiti tra piano terra e primo piano, con spazi ben organizzati, pensati per garantire ambienti luminosi e confortevoli. Al piano terra troviamo soggiorno con cucina a vista, bagno, locale tecnico. All’esterno si trovano un ampio giardino, un portico coperto di 25 mq ideale per vivere gli spazi esterni in ogni stagione, un box auto doppio di 25 mq. Al primo piano tre camere da letto, due bagni e terrazzi per complessivi 24 mq. La seconda unità, sebbene speculare alla prima, presenta alcune differenze dimensionali. Costruita su una superficie totale di 470mq, è leggermente più piccola. Occupa uno spazio di 178 mq mantenendo identiche le dimensioni del box e degli spazi utili su entrambi i piani. Tuttavia, ha terrazzi di soli 8mq, risultando così 16mq in meno rispetto alla villa 1. La terza villa si sviluppa su una superficie totale di 234 mq e ha il giardino più grande rispetto alle altre due ville, circa 460mq. Al piano terra troviamo un soggiorno, una cucina open space, due camere da letto, un guardaroba e due bagni. Inoltre c’è un soppalco di 60mq dotato di bagno e locale tecnico, con una zona relax perfetta per momenti di tranquillità. Ogni unità può essere personalizzata nei dettagli in base alle esigenze e allo stile di vita dei futuri proprietari, offrendo così una soluzione davvero su misura. Per maggiori informazioni contattaci allo 0331922071
Caratteristiche principali
Codice:
VFNEWCAST485
Città:
Castelletto sopra Ticino
Categoria:
Villa
Locali:
4
Camere:
3
Bagni:
3
Mq:
194
Box:
2
Mq Box:
25
Mq Giardino:
370
Terrazzi:
2
mq Terrazzo:
24
Anno:
2026
Classe energetica:
A4
Stato Immobile:
Nuovo
Grado:
Signorile
Posizione:
Periferia
Panorama:
Vista Aperta
Orientamento:
Nord Ovest Sud Est
Lati Liberi:
4
Giardino:
Privato
Tipo Soggiorno:
Soggiorno
Tipo Cucina:
A Vista
Riscaldamento:
Autonomo
Tipo Riscaldam.:
Pompa di Calore
Tipo Impianto:
Pavimento
Fonte Energetica:
Elettrico
Acqua Calda:
Autonoma
Infissi:
PVC Doppio Vetro
Serramenti:
Nuovo
Persiana:
Persiana Metallo
Pavim. Giorno:
Personalizzato
Pavim. Notte:
Personalizzato
Pavim. Cucina:
Personalizzato
Pavim. Bagno:
Personalizzato
Accesso Disabili:
Nessuna Barriera
Accesso interno disabili:
Parziale
Isolamento:
Presente
Isolamento termico:
Cappotto esterno
Accessori
Cancello Elettrico
Doppi Vetri
Doppio Ingresso
Impianto Fotovoltaico
Ingresso Indipendente
Mappa
Via Paoloni, 11 - Castelletto sopra Ticino (NO)
Distanze
Posizione
Centro1,8 km
Istruzione
Scuola materna950 m
Scuola elementare1,6 km
Scuola media1,5 km
Mezzi di trasporto
Aeroporto19 km
Stazione dei treni1,5 km
Altri servizi
Banca1,6 km
Chiesa1,8 km
Supermercato3 km
Virtual tour
Video
Cookie preference