Soluzione indipendente a Sesto Calende - ampi spazi versatili

In vendita
Casa singola
Sesto Calende
350.000 €
Descrizione
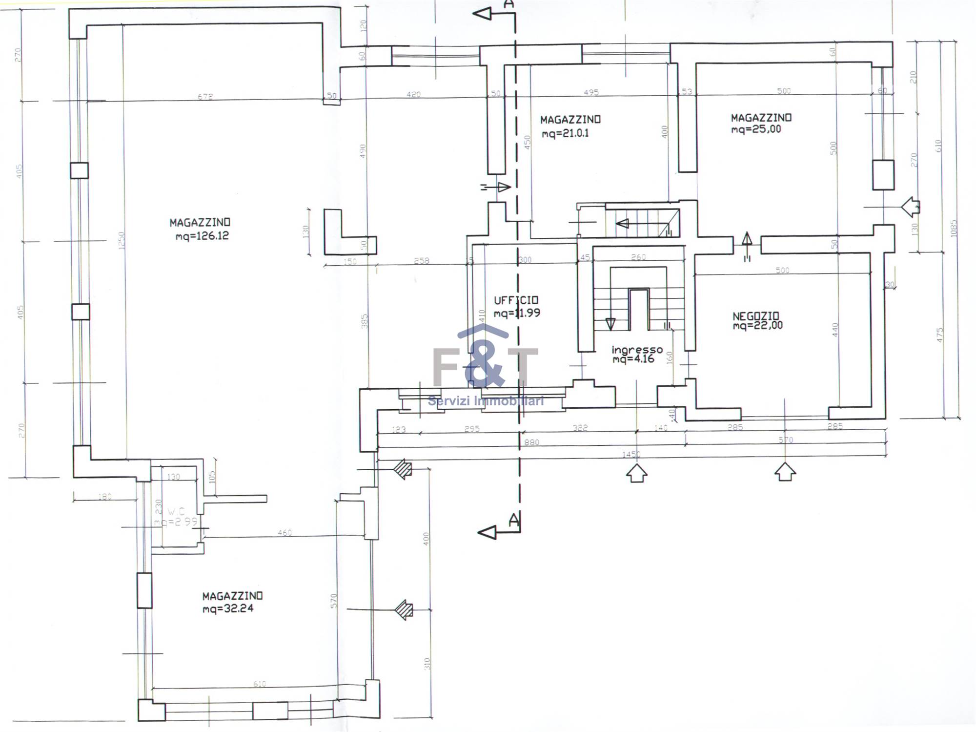
In zona comoda e ben servita, proponiamo in vendita una soluzione indipendente su due livelli, perfetta per chi cerca un’abitazione che integri anche un’attività professionale. Il piano terra, infatti, di circa 190 mq, è attualmente un ampio spazio commerciale, ma offre enormi possibilità di personalizzazione: ideale per un’attività sotto casa, o per essere trasformato in taverna, zona hobby, palestra, o anche garage. Gli spazi, ben distribuiti e facilmente adattabili, comprendono quattro locali adibiti a magazzino, un negozio con vetrina di 22 mq, un ufficio e un servizio igienico. Al piano interrato è presente una cantina. Una scala interna conduce al primo piano, dove troviamo un quadrilocale luminoso e accogliente, con cucina abitabile, sala da pranzo, soggiorno con camino e tre camere matrimoniali di generose dimensioni, un bagno e un lungo balcone, perfetto per godersi le stagioni più calde. Completa la proprietà un’area esterna che può ospitare più posti auto, con doppio accesso carrabile, offrendo così massima comodità per carico/scarico e accesso clienti o ospiti. Nessuna spesa condominiale e massima indipendenza. Un’opportunità unica per chi cerca una casa funzionale e personalizzabile, con la possibilità di vivere e lavorare nello stesso immobile. Per maggiori informazioni o per fissare una visita non esitare a contattarci: 0331922071

Caratteristiche principali
Codice:
VFMON350
Città:
Sesto Calende
Categoria:
Casa singola
Locali:
6
Camere:
3
Bagni:
1
Mq:
378
Balconi:
1
Piano:
1
Anno:
1960
Classe energetica:
G
Stato Immobile:
Da Ristrutturare
Grado:
Economico
Posizione:
Periferia
Panorama:
Vista Aperta
Orientamento:
Nord Ovest Sud Est
Lati Liberi:
4
Tipo Soggiorno:
Soggiorno
Tipo Cucina:
Abitabile
Riscaldamento:
Autonomo
Tipo Riscaldam.:
Caldaia
Tipo Impianto:
Termosifoni
Fonte Energetica:
Gas
Acqua Calda:
Autonoma
Infissi:
Legno Doppio Vetro
Serramenti:
Mediocre
Persiana:
Tapparella PVC
Pavim. Giorno:
Marmo
Pavim. Notte:
Parquet
Pavim. Cucina:
Gres Porcellanato
Pavim. Bagno:
Gres Porcellanato
Accesso Disabili:
No
Accesso interno disabili:
Parziale
Accessori
Camino
Doppio Ingresso
Ingresso Indipendente
Tende da Sole
Mappa
Via Montello, 21 - Sesto Calende (VA)
Distanze
Posizione
Centro1 km
Lago1,2 km
Istruzione
Scuola materna450 m
Scuola elementare450 m
Scuola media450 m
Scuola superiore550 m
Mezzi di trasporto
Aeroporto15 km
Stazione dei treni1,1 km
Altri servizi
Chiesa550 m
Farmacia140 m
Supermercato1 km
Virtual tour
Video
Cookie preference