Somma Lombardo - locale commerciale in vendita

In vendita
Negozio
Somma Lombardo
2.400.000 €
Descrizione
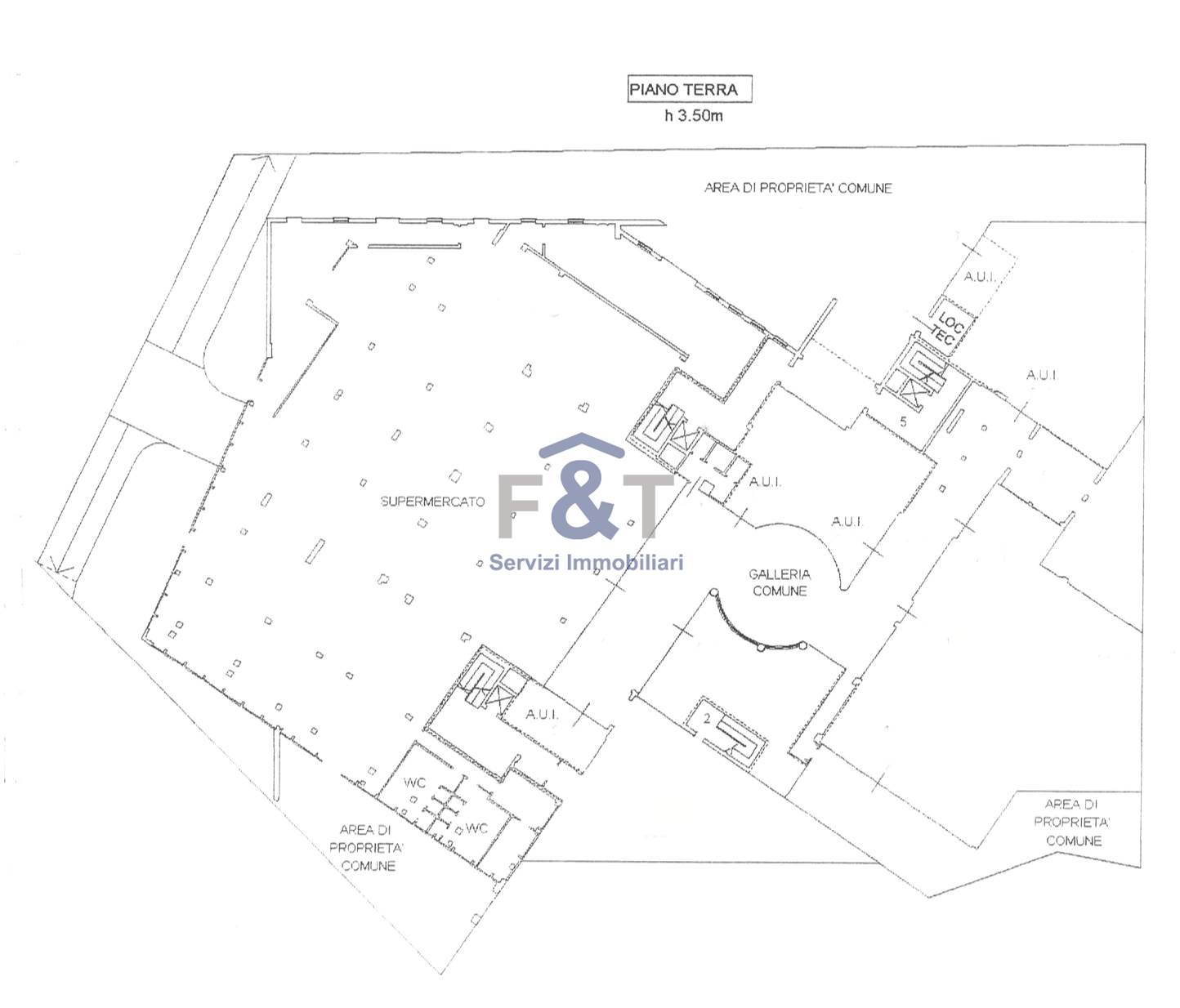
Proponiamo in vendita un ampio immobile al piano terra di circa 1.550 mq, situato nel cuore di Somme Lombardo. Questa proprietà, precedentemente utilizzata come supermercato, offre spazi spaziosi e versatili, arricchiti da locali accessori che ne aumentano le potenzialità di utilizzo. La posizione centrale garantisce un'ottima visibilità e facilità di accesso, grazie anche al parcheggio antistante, ideale per clienti e dipendenti. Se desideri maggiori informazioni o vuoi fissare una visita in loco, non esitare a contattarci: saremo felici di aiutarti a scoprire tutte le possibilità di questa interessante opportunità immobiliare! 0331 922071 www.ftimmobiliare.it
Caratteristiche principali
Codice:
PTCMSL24
Città:
Somma Lombardo
Categoria:
Negozio
Locali:
1
Bagni:
6
Mq:
1550
Anno:
2009
Classe energetica:
D
106,56
Stato Immobile:
Ottimo
Grado:
Medio
Posizione:
Centro
Orientamento:
Nord Ovest Sud
Lati Liberi:
3
Arredi:
Non Arredato
Riscaldamento:
Centralizzato
Tipo Riscaldam.:
Caldaia
Tipo Impianto:
Aria
Fonte Energetica:
Metano
Acqua Calda:
Autonoma
Raffrescamento:
Fan Coil
Infissi:
Alluminio Doppio Vetro
Serramenti:
Discreto
Pavim. Bagno:
Ceramica
Accesso Disabili:
Nessuna Barriera
Accesso interno disabili:
Pieno accesso
Accessori
Aria Condizionata
Doppi Vetri
Doppio Ingresso
Inferriate
Ingresso Indipendente
Passaggio Automobilistico
Passaggio Pedonale
Rete Dati
Ripostiglio
Mappa
CORSO EUROPA - Somma Lombardo (VA)
Virtual tour
Video
Cookie preference