Due locali vicino al lago

In vendita
Dépendance
Monvalle
54.000 €
Descrizione
Stai cercando una stanza fronte lago dove poter trascorrere momenti di relax e tranquillità? Abbiamo la soluzione perfetta per te!

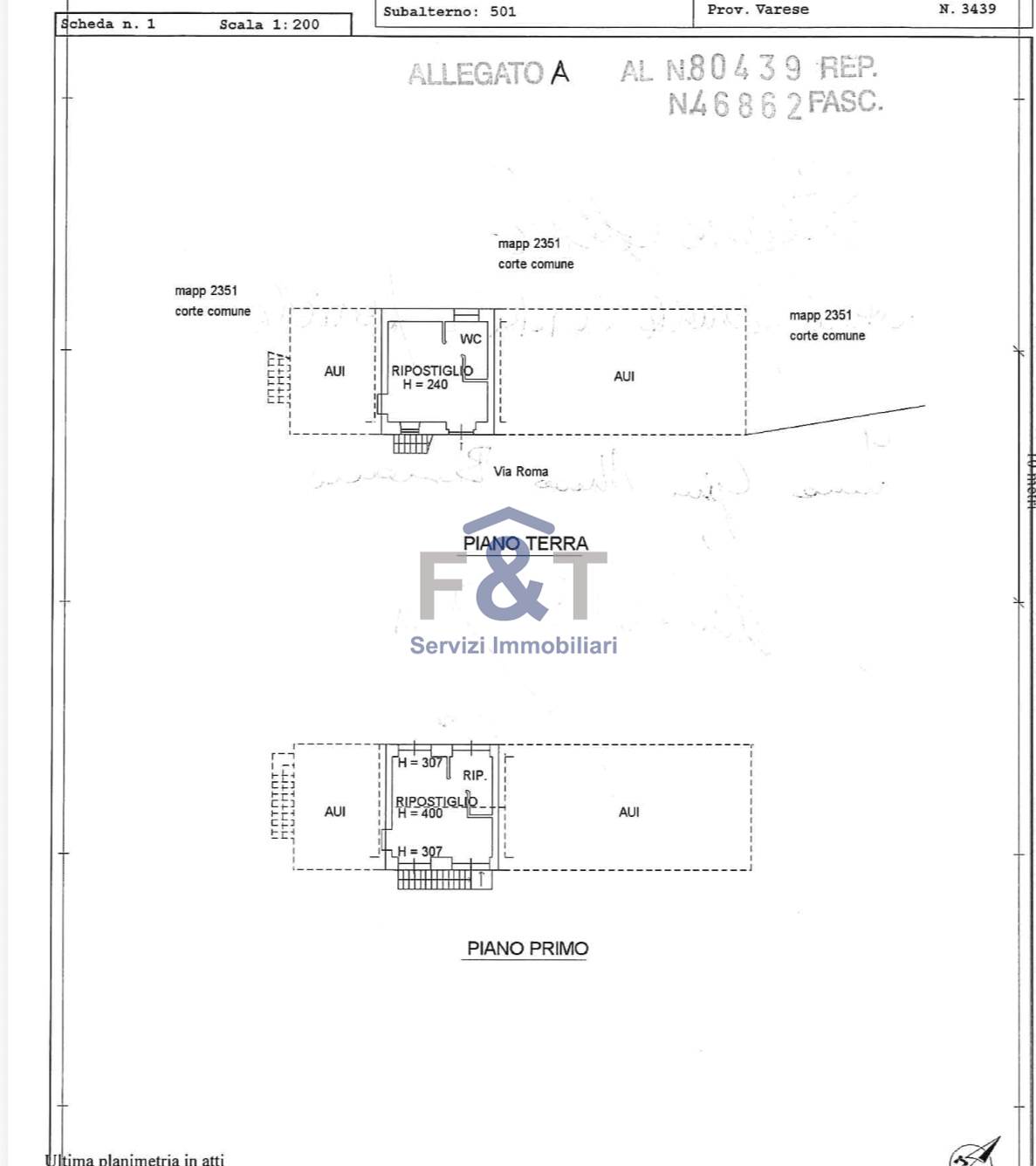
In vendita a Monvalle, proponiamo un piccolo magazzino con parziale vista sul lago.
Piano terra : soggiorno con cucina e bagno
Piano primo : camera, bagno e un accogliente soppalco ideale per ospiti o bambini.

L'accesso al primo piano avviene tramite scala esterna. Immerso in un contesto di cortilizio di pregio che regala un'atmosfera unica e suggestiva.

La soluzioe dispone di luce e acqua

Non lasciarti sfuggire questa occasione unica per avere il tuo rifugio in riva al lago, contattaci ora per ulteriori informazioni e per fissare una visita!

Immobile accatastato come C2
Area esterna comune
Caratteristiche principali
Codice:
EMMonvVela1
Città:
Monvalle
Categoria:
Dépendance
Locali:
2
Camere:
1
Bagni:
2
Mq:
37
Anno ristrutturazione:
2010
Classe energetica:
Non applicabile
Stato Immobile:
Ottimo
Grado:
Medio
Posizione:
Lago
Panorama:
Vista Lago
Lati Liberi:
2
Giardino:
No
Arredi:
Arredato
Tipo Soggiorno:
Tinello
Tipo Cucina:
Cucinotto
Riscaldamento:
Autonomo
Tipo Riscaldam.:
Ventilconvettore
Tipo Impianto:
Altro
Fonte Energetica:
Elettrico
Acqua Calda:
Boiler elettrico annuale
Infissi:
Legno Doppio Vetro
Serramenti:
Ottimo
Persiana:
Oscurante Legno
Pavim. Giorno:
Laminato
Pavim. Notte:
Laminato
Pavim. Cucina:
Laminato
Pavim. Bagno:
Ceramica
Pavimento:
Ceramica
Accesso Disabili:
No
Accesso interno disabili:
Parziale
Accessori
Doppi Vetri
Zanzariere
Mappa
Roma, 1 - Monvalle (VA)
Planimetrie
Cookie preference