Porzione di fabbricato

In vendita
Casa singola
Monvalle (Monvallina)
130.000 €
Descrizione
Casa da ristrutturare con un enorme potenziale di investimento a due massi dal suggestivo Lago Maggiore. Ideale per essere trasformata in un lussuoso B&B. Situata in una posizione privilegiata, offre la possibilità di creare un’accogliente struttura ricettiva per ospiti in cerca di tranquillità e bellezza paesaggistica.
Perfetta fusione tra spazio, confort e natura!
Proponiamo una residenza unica nel suo genere a Monvalle: immobile con unità abitativa principale di oltre 200mq.
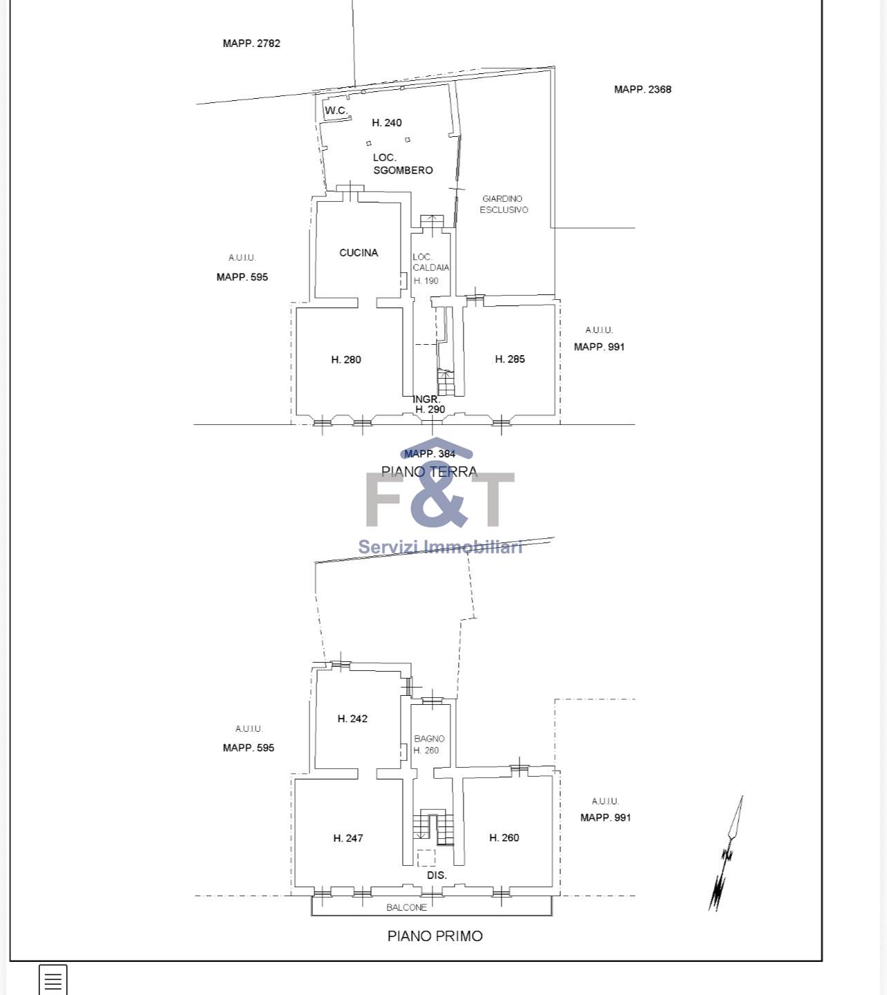
Al piano terra troviamo un ampio soggiorno, una cucina, portico e sala da pranzo.
Il primo piano offre 3 camere da letto spaziose e un bagno, garantendo la privacy e il confort di una distribuzione intelligente degli spazi.
Contattaci ora per prenotare una visita

E’ possibile unire alla proprietà un fienile di circa 70 mq con 3000 mq di terreno circostante (da conteggiare a parte)
Caratteristiche principali
Codice:
EMMonvalle150
Città:
Monvalle (Monvallina)
Categoria:
Casa singola
Locali:
8
Camere:
4
Bagni:
1
Mq:
240
Mq Giardino:
60
Balconi:
1
Anno:
1900
Classe energetica:
Non applicabile
Stato Immobile:
Come da Origini
Grado:
Medio
Posizione:
Campagna
Panorama:
Vista Giardino
Orientamento:
Est Nord Ovest
Lati Liberi:
2
Giardino:
Privato
Arredi:
Possibilità
Tipo Soggiorno:
Sala da Pranzo
Tipo Cucina:
Abitabile
Riscaldamento:
Autonomo
Tipo Riscaldam.:
Caldaia
Tipo Impianto:
Radiatori
Fonte Energetica:
Metano
Acqua Calda:
Autonoma
Infissi:
Legno
Serramenti:
Discreto
Persiana:
Persiana Legno
Pavim. Giorno:
Ceramica
Pavim. Notte:
Ceramica
Pavim. Cucina:
Ceramica
Pavim. Bagno:
Ceramica
Accesso Disabili:
Nessuna Barriera
Accesso interno disabili:
Parziale
Isolamento:
Non presente
Isolamento termico:
Nessuno
Isolamento acustico:
Nessuno
Accessori
Camino
Canna Fumaria
Veranda
Mappa
Via Piano superiore - Monvalle (VA)
Planimetrie
Cookie preference