Area destinazione artigianale

In vendita
Capannone
Ispra
Prezzo riservato
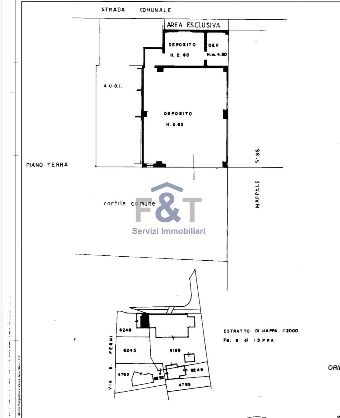
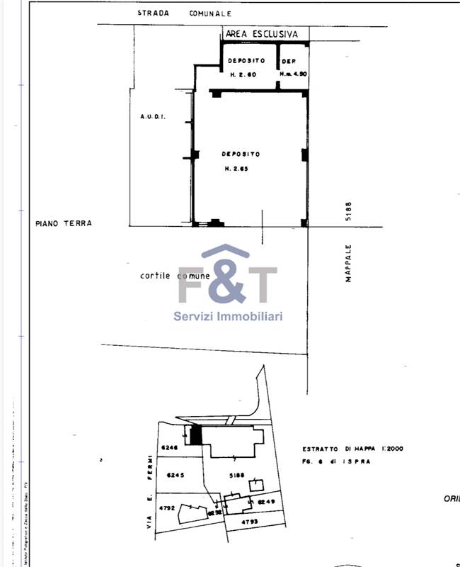
Descrizione
A pochi passi dal centro paese, su strada di forte passaggio sia veicolare che pedonale in contesto di attività artigianali e commerciali proponiamo in vendita area di circa 4.000mq disposti al piano terra e così distribuiti:

-uffici direzionali dotati di grandi vetrate fronte strada e doppio ingresso
-magazzini,
-officina;
-deposito in corpo staccato h 4.50;
-tettoia in corpo staccato h 5.20;
-capannone aperto/laboratorio falegnameria
Il capannone/laboratorio ha una superficie di circa 1.800 m. Passo carrabile con altezza totale di 5.10 m + tettoia altezza 6 metri area deposito 4.5m.
Termina la proprietà il cortile escluso /piazzale di circa 1.500 mq totalmente cintato con cancello scorrevole per l’ingresso di mezzi pesanti.
Secondo ingresso indipendente

Trattativa riservata
Caratteristiche principali
Codice:
EMIspra
Città:
Ispra
Categoria:
Capannone
Locali:
10
Bagni:
2
Mq:
2000
Classe energetica:
Non classificabile
Stato Immobile:
Discrete Condizioni
Grado:
Medio
Posizione:
Centro
Panorama:
Vista Aperta
Orientamento:
Nord Ovest Sud Est
Lati Liberi:
4
Riscaldamento:
Autonomo
Tipo Riscaldam.:
Ventilconvettore
Tipo Impianto:
Aria
Acqua Calda:
Autonoma
Infissi:
Metallo Doppio Vetro
Serramenti:
Ottimo
Accesso Disabili:
Nessuna Barriera
Accessori
Doppio Ingresso
Ingresso Indipendente
Passaggio Automobilistico
Passaggio Pedonale
Portineria/Custode
Mappa
Via Fermi, 751 - Ispra (VA)
Planimetrie
Cookie preference