Appartamento a pochi minuti dal lago

In vendita
Appartamento
Comerio
89.900 €
Descrizione
Appartamento a pochi minuti dal lago in vendita a Comerio.
Nel cuore di Comerio, un incantevole paesino immerso nel verde e a pochi minuti di auto dal lago di Varese, vi proponiamo un’opportunità imperdibile: un ampio appartamento situato al primo piano di un edificio storico, all’interno di una corte antica.
L’immobile, senza ascensore, si caratterizza per un soggiorno che vi lascerà senza fiato, grazie al suo prestigioso soffitto dipinto a mano con finiture dorate in oro zecchino, un vero e proprio capolavoro che conferisce un’atmosfera unica e raffinata.
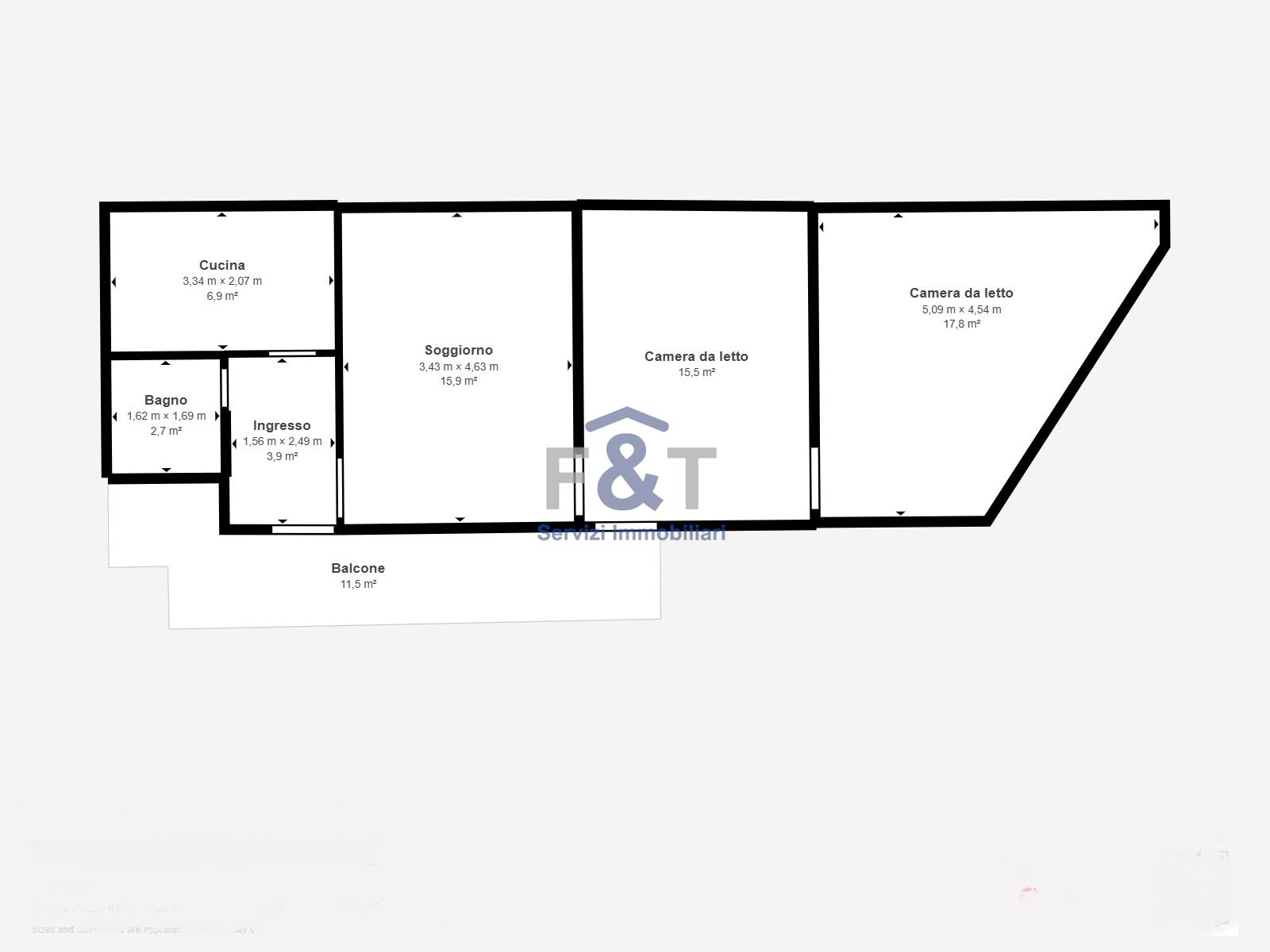
L’appartamento offre due camere da letto spaziose, una cucina semiabitabile e un bagno completo con vasca.
A completare la proprietà, un ampio balcone privato, ideale per godersi momenti all’aria aperta.
L’immobile vanta due ingressi, uno principale e uno aggiuntivo, che si apre direttamente in una delle camere da letto (attualmente chiuso ma facilmente riattivabile), offrendo un’ulteriore opportunità di personalizzazione.
Il riscaldamento è termoautonomo e l’appartamento è arricchito dai prestigiosi pavimenti originali degli anni ’20, che conferiscono all'ambiente un'eleganza senza tempo, e dai serramenti in PVC con doppio vetro, recentemente sostituiti.
Nel cortile comune è presente una cantina ad uso condiviso e non sono previste spese condominiali, un vantaggio raro e prezioso.
A soli 50 metri dall’abitazione si trova un ampio parcheggio comunale gratuito, comodissimo sia per l’uso quotidiano sia per ospitare amici e parenti.
La posizione strategica, unita al fascino storico dell’immobile e alla vicinanza al lago, rende questa proposta ideale sia come abitazione principale sia come eccellente investimento per la realizzazione di un Bed & Breakfast, in una zona molto apprezzata per tranquillità, natura e qualità della vita.
Comerio è una perla da scoprire, un borgo che offre la serenità di un piccolo paese, ma con la comodità di essere a pochi passi dal lago e dalle principali arterie stradali, un luogo dove ogni giorno si può godere della bellezza della natura e della pace che solo un angolo come questo sa offrire.
I dati esposti sono puramente indicativi e possono essere soggetti a errori o omissioni involontarie.
Contattaci per ottenere maggiori informazioni e fissare un appuntamento per una visita!
Caratteristiche principali
Codice:
BBAR173
Città:
Comerio
Categoria:
Appartamento
Locali:
3
Camere:
2
Bagni:
1
Mq:
85
Balconi:
1
Piano:
1
Classe energetica:
In fase di valutazione
Stato Immobile:
Buono
Grado:
Economico
Posizione:
Lago
Giardino:
Cortile
Arredi:
Non Arredato
Tipo Soggiorno:
Soggiorno
Tipo Cucina:
Semi Abitabile
Riscaldamento:
Autonomo
Infissi:
PVC Doppio Vetro
Accessori
Doppi Vetri
Doppio Ingresso
Ingresso Indipendente
Mappa
Via Giuseppe Garibaldi - Comerio (VA)
Virtual tour
Video
Cookie preference